氨用截止閥 | J41B
氨用截止閥 產品說明
氨用截止閥經常要用到氧氣、氮氣、氫氣、氬氣等氣體。這些氣體一般都是貯存在專用的高壓氣體中。使用時通過氨用截止閥使氣體壓力降至實驗所需范圍,再經過其它控制閥門細調,使氣體輸入使用系統。常用的減壓閥為氨用截止閥,簡稱氨用閥。氨用截止閥的高壓腔與鋼瓶連接,低壓腔為氣體出口,并通往使用系統。高壓表的示值為鋼瓶內貯存氣體的壓力。低壓表的出口壓力可由調節螺桿控制. 使用時先打開鋼瓶總開關,然后順時針轉動低壓表壓力調節螺桿,使其壓縮主彈簧并傳動薄膜、彈簧墊塊和頂桿而將活門打開。這樣進口的高壓氣體由高壓室經節流減壓后進入低壓室,并經出口通往工作系統。轉動調節螺桿,改變活門開啟的高度,從而調節高壓氣體的通過量并達到所需的壓力值。 氨用截止閥都裝有安全閥。它是保護氨氣減壓閥并使之安全使用的裝置,也是氨氣減壓閥出現故障的信號裝置。如果由于活門墊、活門損壞或由于其它原因,導致出口壓力自行上升并超過一定許可值時,安全閥會自動打開排氣。
氨用截止閥 性能指標
公稱壓力PN(MPA) | 試驗壓力PS(MPa) | 適用介質 | 適用溫度(℃) | |
---|---|---|---|---|
2.5 | 3.8 | ? 氨氣、 氨液等 NH3 | ? 巴氏合金 -40℃ +150℃ | ? 四氟 -40℃ +200℃ |
4.0 | 6.4 |
氨用截止閥 零件材質
零件名稱 | 閥體、閥蓋 | 密封圈 | 填料 | 填料壓蓋 | 閥桿 | 墊片 |
---|---|---|---|---|---|---|
J41B-25C | 鑄鋼 | 巴氏合金 | ? 聚四氟 乙 烯 | 碳鋼 | ? 聚四氟 乙 烯 | |
J41B-25Z | 灰鑄鐵 | |||||
J41B-25P | 不銹鋼 | 不銹鋼 | ||||
J41F-25Z | 灰鑄鐵 | ? | 碳鋼 |
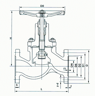
氨用截止閥 結構尺寸圖
氨用截止閥 連接尺寸
公稱通徑 DN(mm) | 尺 寸(mm) | |||||||||||
---|---|---|---|---|---|---|---|---|---|---|---|---|
L | D | D1 | D2 | D4 | b | f | f1 | Z-φd | 關 | 開 | D3 | |
10 | 130 | 90 | 60 | 40 | 35 | 16 | 2 | 4 | 4-φ14 | 165 | 185 | 110 |
15 | 130 | 95 | 65 | 45 | 40 | 16 | 2 | 4 | 4-φ14 | 165 | 185 | 110 |
20 | 150 | 105 | 75 | 55 | 51 | 18 | 2 | 4 | 4-φ14 | 170 | 200 | 120 |
25 | 160 | 115 | 85 | 65 | 58 | 18 | 2 | 4 | 4-φ14 | 197 | 210 | 120 |
32 | 180 | 135 | 100 | 78 | 66 | 20 | 2 | 4 | 4-φ18 | 199 | 213 | 140 |
40 | 200 | 145 | 110 | 85 | 76 | 20 | 3 | 4 | 4-φ18 | 248 | 264 | 160 |
50 | 230 | 160 | 125 | 100 | 88 | 22 | 3 | 4 | 4-φ18 | 265 | 295 | 180 |
65 | 290 | 180 | 145 | 120 | 110 | 24 | 3 | 4 | 8-φ18 | 310 | 349 | 220 |
80 | 310 | 195 | 160 | 135 | 121 | 26 | 3 | 4 | 8-φ18 | 340 | 357 | 240 |
100 | 350 | 230 | 190 | 160 | 150 | 30 | 3 | 4.5 | 8-φ23 | 380 | 413 | 280 |
125 | 400 | 270 | 220 | 188 | 176 | 32 | 3 | 4.5 | 8-φ25 | 430 | 451 | 320 |
150 | 480 | 300 | 250 | 218 | 204 | 32 | 3 | 4.5 | 8-φ25 | 505 | 492 | 360 |
200 | 600 | 360 | 310 | 278 | 260 | 34 | 3 | 4.5 | 12-φ25 | 550 | 806 | 400 |
250 | 650 | 425 | 370 | 335 | 31 | 36 | 3 | 4.5 | 12-φ30 | 730 | 880 | 450 |
300 | 750 | 485 | 430 | 390 | 364 | 40 | 3 | 4.5 | 16-φ30 | - | 995 | 550 |
氨用截止閥圖片